🏠 View Private Teardown Listings
Paramount Construction

The Marbury G Model

6
Bedrooms
4.5
Bathrooms
4,828
Sq Ft
Arts & Crafts
Style
Build it as shown — or customize to fit your lot and your lifestyle.
 

▼ Scroll to see floor plans, gallery & specs

What Would This Home Cost on Your Lot?

This is a home plan — not a finished house. Build it on your lot, or on a property we've identified. Paramount evaluates hundreds of lots and teardowns across the DC metro for potential acquisition. Tell us where you want to build.

or

Call 301-370-6463
What's Included

Standard Specifications at a Glance

Every home starts here. Upgrades and customization available on every detail.

Exterior & Structure

James Hardie CedarMill siding (16 colors) · CertainTeed 30-year architectural shingles · Pella Lifestyle aluminum-clad wood windows · 8-ft solid mahogany entry door · Brick-stamped foundation · Professional landscaping package

Kitchen & Cabinetry

Full-overlay soft-close cabinets (3 door styles) · Level 1 granite or quartz countertops · GE Profile appliances (gas range, side-by-side fridge, dishwasher) · GE Café glass canopy range hood · Kohler Vault undermount sink

Baths & Plumbing

Kohler fixtures throughout · 67" freestanding soaking tub in primary · Frameless glass primary shower · Comfort-height toilets with quiet-close seats · Porcelain tile floors and subway tile walls

Interior Finishes

4" Red Oak hardwood on main level (6 stain options) · Crown molding and 5¼" baseboards · Masonite solid-core doors · Sherwin-Williams designer palette · Schlage designer hardware (5 finishes)

Living & Comfort

Napoleon Ascent 42 gas fireplace with Arts & Crafts mantel · Red oak staircase with painted balusters · French doors for study/office · LED recessed lighting throughout · Phenix/Mohawk carpet on upper level

Upgrades Available

Sub-Zero/Wolf/Thermador appliances · Custom iron or glass panel railings · Modern cable rail systems · Smart home integration · Stamped concrete or bluestone pavers · Whole-house surge protection

Want more detail on brands, materials, and what's included at every level?

Floor Plans

See the Layout

Click any plan to enlarge

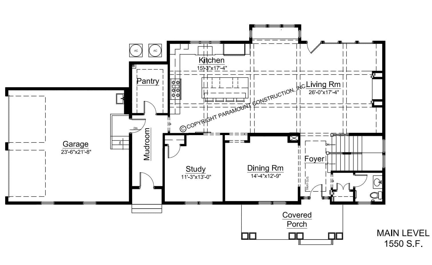
Marbury G Main Level Floor Plan
Main Level
Marbury G Upper Level Floor Plan
Upper Level
Marbury G Lower Level Floor Plan
Lower Level
Your Investment

How New Home Pricing Works

The price you see includes an estimated land allowance. Your actual investment depends on the lot — yours or one we've identified — along with site conditions, home size, and finishes.

Build it exactly as shown or change every detail — the strategy call is where we put real numbers together based on your priorities.

Here's how the process works. It's three distinct phases, each with a purpose:

Phase 1

Design & Selections

This is where your home takes shape. Plans are created or modified by our in-house architects. You choose finishes, fixtures, and layout — or let our design team handle it for you.

Phase 2

Permitting

We submit your plans and manage the approval process with your local jurisdiction. This phase runs in the background while final details are locked in.

Phase 3

Construction

Your home is built. Every decision has already been made, and the build moves with purpose. Most homes are completed within 15 to 18 months from lot selection to move-in, though timelines can vary based on design complexity, client selections and decision-making, and local permitting.

Whether you want to choose every tile and finish yourself or let Paramount's design team handle the selections for you, we match the process to how you want to build.

Not ready to wait? Browse our homes that are already complete or under construction.

Schedule a Strategy Call Get a Price Estimate
Ready to Explore?

Build the Marbury G on Your Lot — or One We've Identified

You're not buying someone else's house — you're building yours. Paramount evaluates hundreds of lots and teardowns across the DC metro for potential acquisition. Tell us where you want to build.

Arlington · Bethesda · Chevy Chase · Falls Church · McLean · Potomac · Vienna · NW DC

📞 Call or Text 301-370-6463