1. Cover Page
Prepared By
Paramount Construction
Property Address
8501 Rayburn Road
Bethesda, Maryland 20817
Jurisdiction
Montgomery County, Maryland
Lot Size
Approx. 8,200 sq. ft. (0.19 acres)
Exact lot area must be verified by a licensed land surveyor.
Subdivision
Bradmoor (per public records; to be verified)
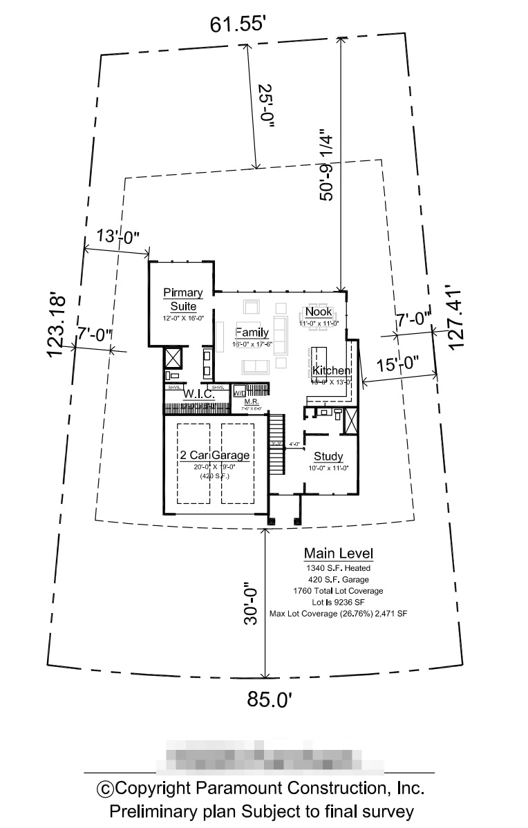
1A. Preliminary Plan – Buildable Area (Illustrative Only)
The following preliminary plan image is provided for illustrative purposes only. It reflects a
qualified, preliminary estimate of potential buildable area and is based on conceptual
information available at this early stage. It has not been verified by a licensed land
surveyor, site/civil engineer, or architect.
Preliminary Plan – Qualified Estimated Buildable Area for 8501 Rayburn Road, Bethesda, MD.
Any buildable area shown is a conceptual, qualified estimate only and must be verified by a licensed
land surveyor and site/civil engineer after they are engaged in a later project phase. The illustration
does not constitute a final determination of buildable area, lot coverage, or development potential.
Important: This illustration is conceptual only. All measurements, boundaries, setbacks,
buildable envelope, and lot coverage shown are subject to verification by a licensed land
surveyor, site/civil engineer, and architect, and are further subject to Montgomery County zoning and permitting
review. No conclusions about actual buildable area or future improvements should be drawn from this image alone.
2. Executive Summary
8501 Rayburn Road is a corner-lot single-family residential property located in the Bradmoor subdivision
of Bethesda, Maryland. The site is improved with an existing brick detached home reportedly built in 1949,
with approximately 1,440 square feet of above-grade living area (3 bedrooms, 1 full bath, 1 half bath),
based on public listing data. The lot is in a well-established residential neighborhood in Montgomery County,
Maryland.
The property lies within the R-60 (Residential – 60) zone of Montgomery County, which is a
one-family detached residential zone. Public data indicates a lot area of approximately 8,200 square feet
(0.19 acres), which appears to exceed the minimum lot size for the R-60 zone. All dimensions and zoning
compliance must be verified by a licensed land surveyor and confirmed with county zoning staff.
Property Facts (Preliminary – Subject to Verification)
-
Lot Size: Approx. 8,200 sq. ft. (0.19 acres); R-60 minimum lot size is 6,000 sq. ft.
Exact lot area and dimensions must be verified by licensed land surveyor.
-
Zoning Classification: R-60 (Residential – 60), Montgomery County, MD.
-
Setbacks: R-60 code-based standards (front, side, rear) apply;
all actual setbacks and buildable area must be verified by a licensed surveyor.
-
Utilities Available (per public sources): Public water, public sewer, electricity, natural gas,
and telecommunications service are available in this area; specific providers must be confirmed directly.
-
School District: Montgomery County Public Schools (MCPS); commonly associated schools include
Bradley Hills ES, Thomas W. Pyle MS, and Walt Whitman HS.
School assignments must be confirmed directly with MCPS at time of enrollment.
3. Property Analysis
3.1 Existing Conditions
Existing Home (Per Public Listing Data – To Be Verified):
- Property Type: Single-family detached dwelling
- Approx. Above-Grade Living Area: ~1,440 sq. ft. (to be verified)
- Bedrooms: 3
- Bathrooms: 1 full, 1 half
- Year Built: 1949 (to be verified with county records)
- Stories: Two-story colonial style (per listing descriptions)
- Construction: Brick (per listing)
- Garage: One-car garage (per listing)
-
Condition: Listing remarks indicate the home is sold strictly “as-is” and needs major
renovation (“rehab or tear down”).
This is listing language only and does not substitute for a professional inspection.
Assessed Value & Property Taxes (Preliminary):
-
Assessed Value: Public data indicates an assessed value in the mid-$800,000 range
(to be verified with Maryland SDAT and Montgomery County tax records).
-
Property Taxes: Estimated annual taxes in the low-$10,000 range
(to be verified with Montgomery County).
-
Last Sale Date & Price: Currently shown as “Pending” in MLS at approx. $999,900.
Prior deed history must be confirmed through county land records.
3.2 Utilities & Infrastructure
Water & Sewer:
- Water: Public water — typically WSSC Water (to be confirmed)
- Sewer: Public sewer — typically WSSC Water (to be confirmed)
Electricity:
- Pepco service area (to be confirmed by provider)
Natural Gas:
- Washington Gas service area (to be confirmed)
Telecommunications:
- Broadband, phone, and cable available (specific providers must be confirmed)
3.3 Environmental Considerations (Preliminary)
Wetlands:
- No wetlands indicated by general mapping tools
- Formal delineation required to confirm
Floodplain:
- No FEMA Special Flood Hazard Area indicated at neighborhood scale
- Parcel-level FEMA review still required
Environmental Restrictions:
- No known overlays from public records
- To be confirmed via title search and county records
General Site Conditions:
- Corner lot in established Bradmoor neighborhood
- Existing home appears functionally obsolete per listing remarks
3.4 Title & Legal Considerations
Title Review Not Performed: All legal, title, easement, and encumbrance matters must be
confirmed by a licensed title company and real estate attorney.
- Liens: To be verified
- Mortgages: To be verified
- Lawsuits: To be verified
- Judgments: To be verified
4. Zoning & Regulatory Analysis
- Zoning Classification: R-60 (Montgomery County)
- Zone Type: One-family detached residential
- Minimum Lot Size: 6,000 sq. ft.
- Reported Lot Size: ~8,200 sq. ft. (to be confirmed)
Compliance Notes:
Preliminary data suggests the lot exceeds minimum area requirements.
All dimensional compliance must be verified by a licensed land surveyor and county zoning staff.
Setback Requirements Table (R-60 – Standard Method)
| Setback Requirement |
Required |
Status |
| Front Yard |
25 ft. or Established Building Line (EBL) |
Survey Required |
| Rear Yard |
20 ft. minimum |
Survey Required |
| Side Yard |
8 ft. minimum (each) |
Survey Required |
| Combined Side Yards |
18 ft. minimum |
Survey Required |
5. Buildable Area
The buildable area shown in the preliminary plan is a qualified estimate only. It has not been
verified by a licensed land surveyor, site/civil engineer, or architect. All buildable area calculations,
boundaries, and constraints require full professional verification.
This feasibility report does not calculate or certify buildable square footage, buildable
footprint, lot coverage, or total finished living space. Any values appearing in images are conceptual only.
Final buildable area must be determined by:
- Licensed Land Surveyor
- Licensed Site/Civil Engineer
- Licensed Architect
- Montgomery County Permitting Review
Important:
This report does not state or imply any conclusion about development potential or what can be built.
6. Preliminary Findings
Pending Verification by Licensed Land Surveyor
- Lot Size: ~8,200 sq. ft. (preliminary)
- Zoning: R-60
- Utilities: Public water, public sewer, electricity, gas (to be confirmed)
- Environmental: No preliminary restrictions identified
- Existing Structure: Functionally obsolete per listing data
All findings are preliminary and must be confirmed by licensed professionals.
7. Disclaimer & Professional Services
Important: Licensed Land Surveyor Required
- Boundary verification
- Setback confirmation
- Easement identification
- Encroachment review
- Buildable envelope confirmation
Additional required consultants include:
architect, civil engineer, geotechnical engineer, environmental consultant, title company, and real estate attorney.
This report is for preliminary informational purposes only. It is not legal, architectural, engineering,
financial, or zoning advice.
8. Contact Information
Paramount Construction
Luxury Custom Homes – DC Metro Region
Serving:
Arlington • Bethesda • Chevy Chase • Falls Church • McLean • Potomac • Vienna • NW DC
Schedule your complimentary lot evaluation today.