Kentbury

Like this home? Schedule a time to walk the lot and discuss. We can design a house like this one or a completely new one to your liking.

Schedule Free Consultation

Thank you! We will be in touch soon.

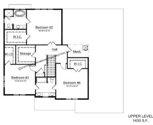
Bedrooms: 5.0
Bathrooms: 4.5
Home Size (sqft): 5446
Style: Arts & Crafts